MENU

English

Deutsch

Haus Honsinzi
Cheongdo Gyeongsangbukdo, Korea _ Photographs by Hélène Binet

Windows by architects.Filobe shares a vision of designing perfect windows from the people-oriented architectural philosophy.

Haus Honsinzi
Cheongdo Gyeongsangbukdo, Korea _ Photographs by Hélène Binet

Windows by architects.Filobe shares a vision of designing perfect windows from the people-oriented architectural philosophy.

In traditional Korean architecture, the perspective of a person within the building is of the primary interest.

Byeongsan Seowon
Andong Gyeongsangbukdo, Korea _ Photographs by Hélène Binet

The 
architecture 
is finalized once a person 
is present within the building. 
Starting from the people-oriented philosophy, Filobe has always strived to achieve the true value of human-friendly architectural environment.
Windows for people.

The architecture is finalized once a person is present within the building. Starting from the people-oriented philosophy, Filobe has always strived to achieve the true value of human-friendly architectural environment.
Windows for people.

Byeongsan Seowon
Andong Gyeongsangbukdo, Korea _ Photographs by Hélène Binet

Product

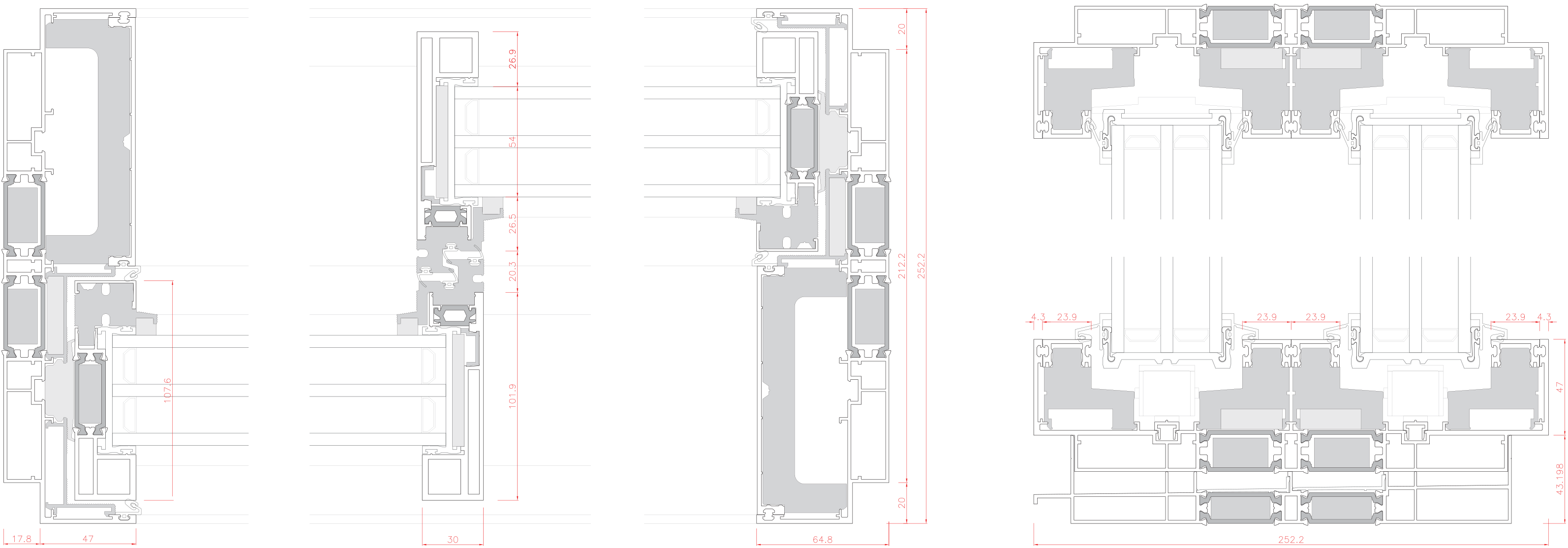
FLE 123 : New standard of window

Modern and sustainable architecture is about much more than maximum energy efficiency through the best possible U-values. Although it demands a slim line appearance, high-quality design and the perfect intergration to details. 

FLE 123 is specially developed sliding window and door by breaking the previous concept of sliding system. Basic concept started from the idea that glass produced in modern times have much stronger structure. Therefore, FLE 123 supplemented and added necessary frames on the glass and fulfilled its high performance. 

FLE 123 fulfilled high thermal insulation performance and its fine appearance by reducing the visible Aluminum frame face width. Extremely slim facade face width provides beautiful and modern interior space. Also, FLE 123 suggests new solutions for architectural design limitations and provides freedom of design expressions.

See more

Haus Honsinzi
Cheongdo Gyeongsangbukdo, Korea _ Photographs by Hélène Binet

Technology

FLE 123 was considered as adiabatically advantageous structure in sliding system. A facade of the product is only consisted of two vertical vent frames. This type of sliding system improves the overall insulation property by minimizing the area of exposed aluminum. 

FLE 123 profile is examined thoroughly by simulation program Therm7.3 of LBNL(Lawrence Berkeley National Laboratory) with the environment of -18°C outside and 21°C inside. 
FLE 123 can provide great insulation performance with high surface temperature maintenance.

Adiabatically specialized materials are applied on FLE 123 profile to block the thermal transmittance. Also, main frame is assembled by installing insulating materialized glass beads. 
Through the efforts, FLE 123 optimized insulating effects and minimized convection currents which degrade the thermal performance. 

The glass bead that assembled with the main frame is designed to form multiple air. As a result, cold energy coming from the outside can be blocked and the thermal heat loss can be minimized. The profile of FLE 123 is optimally planned to have the highest performance with 54mm triple insulated glazing.

Haus Honsinzi
Cheongdo Gyeongsangbukdo, Korea _ Photographs by Hélène Binet

Design

FLE 123 resolves the boundary between inner and outer spaces and offers a spatial transparency. With more than 10 years of experience, Filobe strives for the highest precision and intelligent details. 
The filigree profiles with 30mm face width offers every room a maximal light and fluid spatial transitions. The profiles’ color can be chosen between a powder coating after RAL or anodizing, as well as special ones customized by demand. The FLE 123 profiles are produced in high quality aluminium, so that they are assured in longevity and maintenance free. A resource-saving recycling of aluminium takes into account the concept of environmental sustainability.
FLE 123 sliding vents move on the patented new type roller and the roller make a perfectly silent and smooth sliding operation. Due to roller technology, FLE 123 can slide up to 800kg (14m2 sliding vent) manually easy without much force. 
FLE 123 has the luxurious and stylishly Design handle with Locking system from stainless steel. The system combination of Filobe as slidingvent, fixglass and cornersliding are able to combine without restriction.

Haus Honsinzi
Cheongdo Gyeongsangbukdo, Korea _ Photographs by Hélène Binet

Certification & Feature

Licht Tansmission
Schiebeelemente max.
Festverglasung max.
Bodenprofil
Fluegelgewicht max.
Ansichtsbreite
Rahmenhoehe
Isolierglas
Waermedaemmwet (Ug=0.6) nach EN 10077
Schlagregendichtheit nach EN12208
Luftdurchlaessigkeit nach EN12207
Widerstandsfaehigkeit bei Wind nach EN12210
Bedienungskraefte nach EN 13115
Kombinierbare Oeffnungsmoeglichkeiten
Fliegenschutz
Schliessung

98%
max. 16 m2
max. 16 m2
barrierefrei
max. 1000 kg
30 mm
0 - 65 mm
54mm (3-fach)
Uw =0,71 W/m2K
Klasse 8A
Klasse 3
Klasse C5/B5
Klasse 1
JA
JA
aus Edelstahl

Haus Honsinzi
Cheongdo Gyeongsangbukdo, Korea _ Photographs by Hélène Binet

Downloads

Catalog 
Appendix Catalog

Catalog_FLE123_de
Reference Projects

Haus Honsinzi
Cheongdo Gyeongsangbukdo, Korea _ Photographs by Hélène Binet

News@filobe

New FLE 123 Sliding handle

Filobe makes a fresh launch of FLE 123 sliding handle with locking system. It is as one of the series of design handle by Filobe and made of stainless steel material. This new handle can be applied to the project from July 2020.

News@filobe

New FLE 123 Sliding handle

Filobe makes a fresh launch of FLE 123 sliding handle with locking system. It is as one of the series of design handle by Filobe and made of stainless steel material. This new handle can be applied to the project from July 2020.

Launch: FLE 123 hardware
FLE 123 sliding handle with locking system_ Design by Filobe

Launch: FLE 123 hardware
FLE 123 sliding handle with locking system_ Design by Filobe

Opening a New Office in Munich

May 2020
Filobe opened the first office in Munich, Germany. It located in the central area of Schwanthalerhoehe, neighboring the Thresiewiese, where the Oktoberfest is held. The Munich Office will be in charge of operating future European projects and advertising the products to the European market.

New Munich Office
Filobe opened the first office for sales and marketing in Europe, Munich, Germany

1000th Filobe projects

10 years after launching its first sliding products in the market, Filobe has finally installed 1000th projects. In the meantime, Filobe has always been developing new technique based on past experience in order to tackle new challenges demanded by market.

1000th Filobe projects

10 years after launching its first sliding products in the market, Filobe has finally installed 1000th projects. In the meantime, Filobe has always been developing new technique based on past experience in order to tackle new challenges demanded by market.

1000th Filobe projects have been accomplished
House Munhori_ dia architecture


1000th Filobe projects have been accomplished
House Munhori_ dia architecture


The Intimacy of Making

With ​Filobe & Hélène Binet’s 5 years of preparation, finally the book “ The Intimacy of Making” is published. 
Gratitude to Hélène Binet, for always working with great passion. Also to Lars Mueller Publisher’s staffs for their efforts to make a good book.

The Book "The Intimacy of Making" has been published.
Photographs by Hélène Binet


Honsinzi House_2nd Edition

First Publication : 2015
Photographs by Hélène Binet
Construction : Filobe
Coproducer : Filobe
Book design : Joost Grootens
Printed in the Netherlands

Honsinzi House_2nd Edition

First Publication : 2015
Photographs by Hélène Binet
Construction : Filobe
Coproducer : Filobe
Book design : Joost Grootens
Printed in the Netherlands

Honsinzi Book_2nd Edition
Design by Filobe / Photographs by Hélène Binet


Honsinzi Book_2nd Edition
Design by Filobe / Photographs by Hélène Binet


Contact Us

Munich office
Theresienhoehe 28
80339 Munich
europe (at) filobe.com
T +49 89 2444 07421

  FILOBE ABOUT US
Windows by Architects
Windows for People
PRODUCT
SYSTEM
TECHNOLOGY
DESIGN
CERTIFICATION
DOWNLOAD
CATALOG
APPENDIX CATALOG
REFERENCE PROJECT
NEWS
CONTACT
German
English

Instagram
Facebook
Filobe.com
Impressum